• Neubau Hauptsitz MEDEWO-GRUPPE REALISIERUNG 2019-2024
  • MEDEWO Holding AG, Meisterschwanden

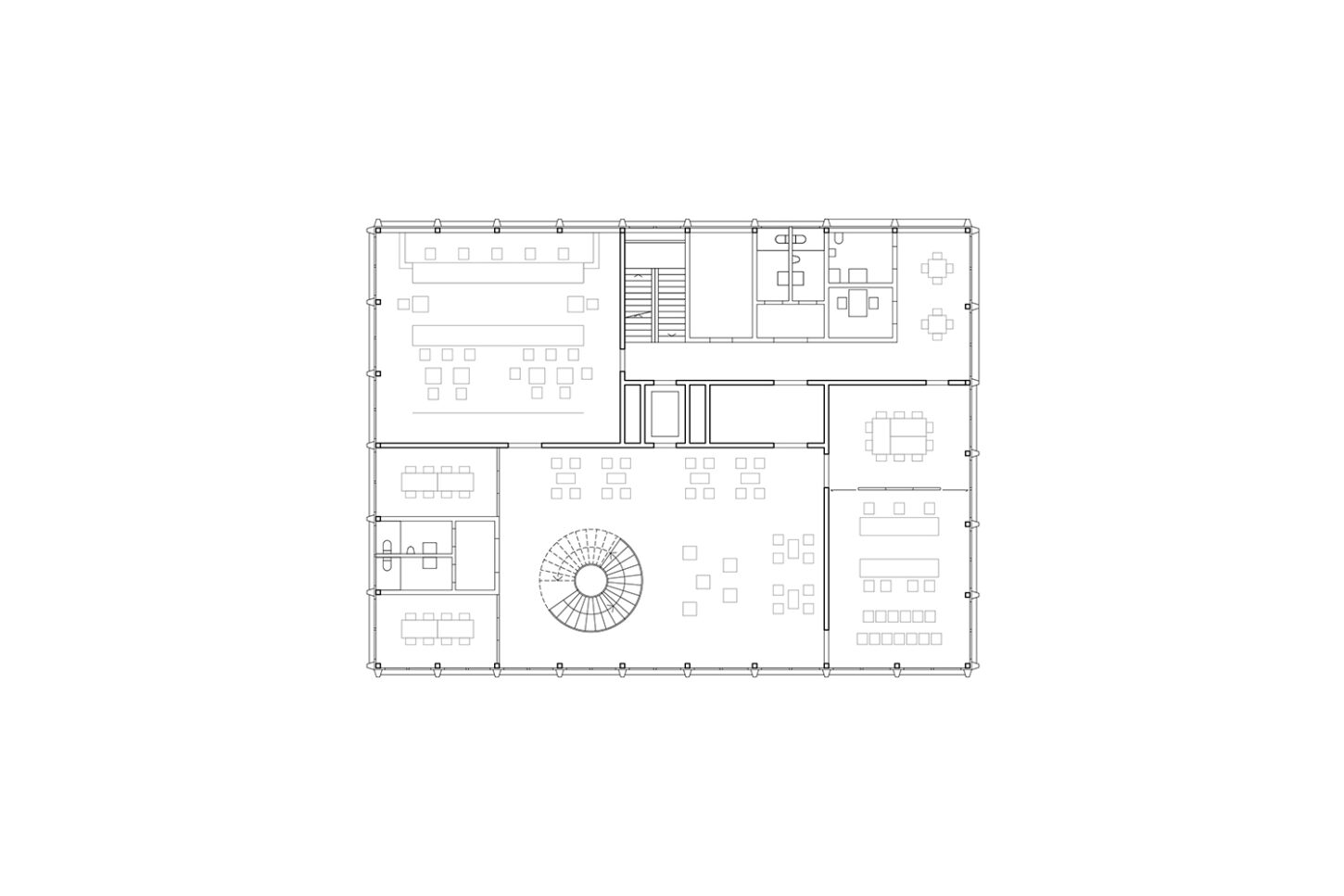
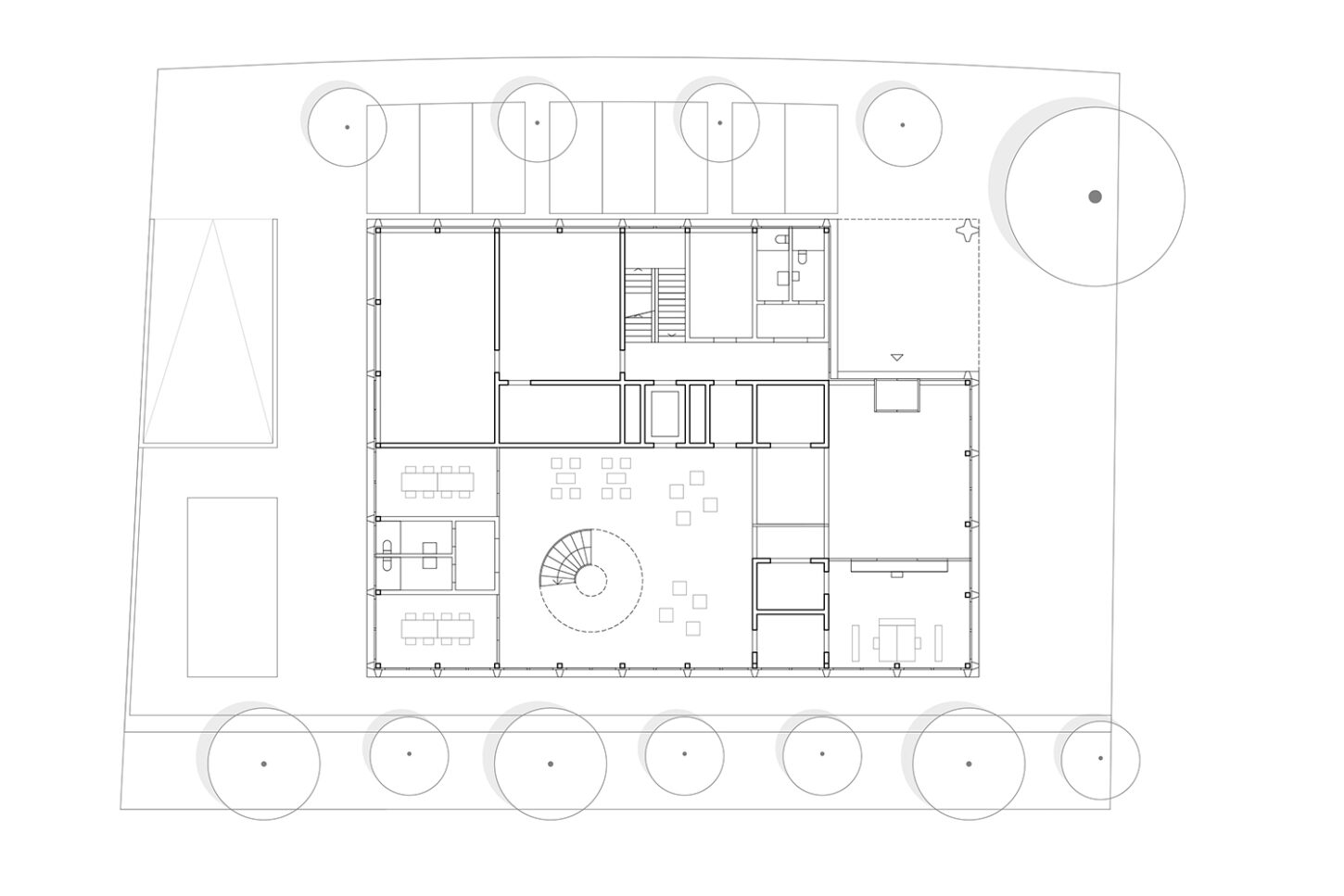
    Der neue Hauptsitz der MEDEWO GRUPPE ist Teil der Gesamtüberbauung am Meierhofweg. Für das regional verankerte und international tätige Verpackungsunternehmen entstanden entlang der Bahnhofstrasse rund 2’000 m² Büro- und Gewerbefläche.

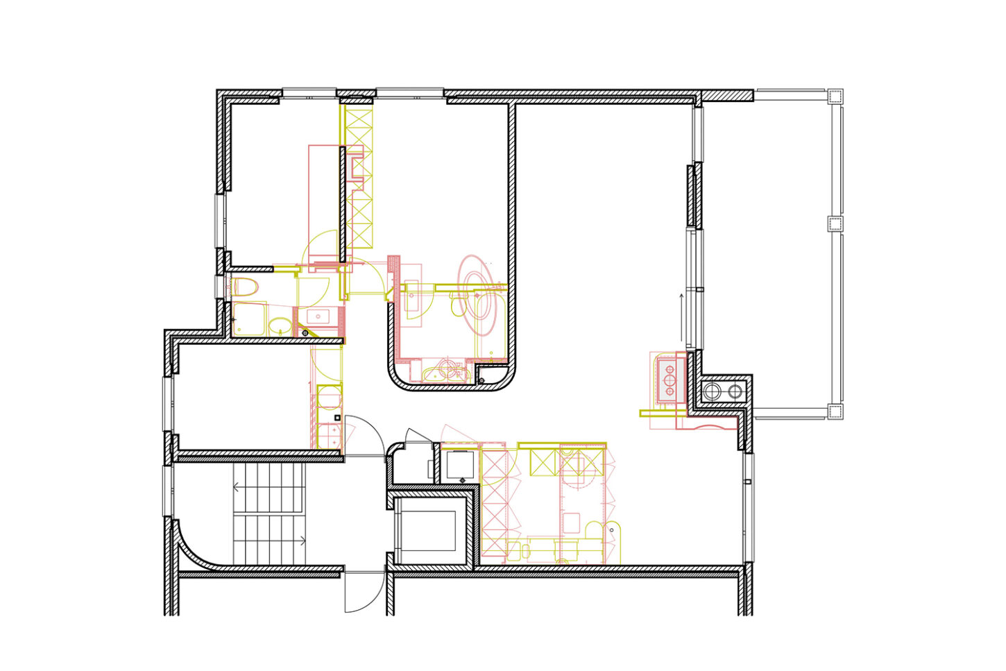
    Repräsentativ und schallschluckend – das Herzstück der neuen Bürofläche

    Das Erdgeschoss öffnet sich mit grossformatigen Fenstern und dunkelgrünen Fallarmmarkisen zur Strassenecke und schafft so eine einladende, prägnante Firmenadresse. Im Gegensatz dazu präsentieren sich die internen Gruppenbüros in den Obergeschossen bewusst zurückhaltender. Zur Bahnhofstrasse hin ist die Fassade streng gegliedert und rhythmisch strukturiert – ganz im bewussten Kontrast zu den Wohnungen auf der Südseite zum Park. Aussen bildet die hochwertige, farblich nuancierte Klinkerfassade das prägende Gestaltungselement, das – je nach Licht und Schatten – immer wieder unterschiedlich matt oder in leichtem Glanz in Erscheinung tritt.

    In den unteren beiden halböffentlichen Geschossen fügen sich die Arbeitsflächen, Mensa und Konferenzraum zu einem Kontinuum mit vielfältigen Ein- und Ausblicken zusammen. Der Sichtbeton wird durch Akustikverkleidungen aus Eiche und grüner Firmenfarbe ergänzt. Die weisse Baffeldecke sorgt nicht nur für Kühlung, sondern lässt durch ihre Zwischenräume auch sanftes, natürliches Licht einfallen.

    Architektur und Realisierung in Zusammenarbeit mit architektura.ch, Lenzburg

    Bauingenieur: Suisseplan Ingenieure, Aarau / HLKS-Planer: Planea, Wohlen
    Elektroplaner: Eloplan, Baar / Bauphysiker: Wichser Akustik & Bauphysik, Zürich
    Landschaftsarchitekt: Cadrage Landschaftsarchitekten, Zürich / Brandschutz: BS-Konzept, Muhen 

  • Wohnungen am Meierhofweg REALISIERUNG 2019-2024
  • IVRO AG, Sins

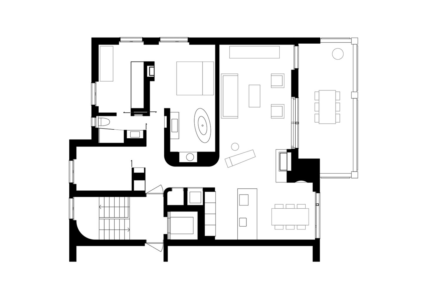
    Die 23 Eigentumswohnungen sind Teil der Überbauung am Meierhofweg in Meisterschwanden. Das Projekt liegt zwischen der historischen Villa Fischer mit ihrem Park und dem angrenzenden Gewerbegebiet. Es verbindet die Anforderungen zweier Bauherrschaften und setzt auf ein gemeinsames Konzept von Wohnen und Arbeiten.

    Rankgerüste lassen den Garten in die Höhe klettern und dienen als natürlicher Sichtschutz

    Die Wohnungen orientieren sich mehrheitlich nach Süden, zum Park der Villa Fischer. Der kompakte Baukörper schafft Freiraum, um die Villa und den Garten langfristig zu erhalten. Grosszügige Loggien, direkte Gartenzugänge und vielfältige Grundrisstypen – von 2½- bis 5½-Zimmer-Wohnungen – prägen die Architektur. Einige Einheiten sind zweiseitig ausgerichtet und erhalten zusätzlich Licht über den begrünten Innenhof.

    Der Vorgarten der Villa dient als gemeinschaftlicher Erholungsraum mit naturnaher Bepflanzung. Rankgerüste führen den Garten in die Vertikale und schaffen Sichtschutz zwischen den Loggien. Innen überzeugen die Wohnungen mit individuellen Ausbauten, eingezogenen Loggien und überdurchschnittlicher Raumhöhe. Offenheit und Rückzug ergeben eine ausgewogene Wohnqualität.

    Die lebendige Klinkerfassade verbindet den Wohn- und Gewerbeteil zu einem harmonischen Ganzen. Das begrünte Dach mit Trockenbiotopen, Sandnistplätzen und einheimischer Flora bietet Lebensraum für Wildbienen, Vögel und Insekten. Dafür wurde das Projekt mit dem Zertifikat der Stiftung Natur & Wirtschaft ausgezeichnet.

    Architektur und Realisierung in Zusammenarbeit mit architektura.ch, Lenzburg

    Bauingenieur: Suisseplan Ingenieure, Aarau / HLKS-Planer: BBU Haustechnik, Sins
    Elektroplaner: Eloplan, Baar / Bauphysiker: Wichser Akustik & Bauphysik, Zürich
    Landschaftsarchitekt: Cadrage Landschaftsarchitekten, Zürich / Brandschutz: BS-Konzept, Muhen 

  • Umbau Wohnung Dattenberg, Kriens REALISIERUNG 2015-2016
  • AUFTRAGGEBER PRIVAT

    Die Dachwohnung am Südhang des Sonnenbergs erlaubt eine herrliche Sicht auf den Vierwaldstättersee. Mit dem Besitzerwechsel wurde die Wohnung aus den 80er Jahren totalsaniert.

    Material, Farbe und Oberflächenstrukturen

    Die kleinen Zimmer und Nassräume entsprachen nicht mehr den heutigen Anforderungen. Sie waren für ein Wohnen im Alter ungeeignet. Die charakteristischen Merkmale der Wohnung sind das gefaltete Dach mit dunklen Balken und die abgerundeten Wände. Mit gezielten Wanddurchbrüchen wurde die kleinteilige Struktur aufgebrochen und in eine grosszügige zusammenhängende Raumabfolge verwandelt. Die raumhohen Schiebetüren unterstützen den Effekt des durchlässigen Raumes und machen das gefaltete Dach erlebbar. Während die Dachuntersicht und die Aussenwände neu mit einem Glattputz versehen wurden, sind die inneren Wandflächen mit unterschiedlichen Putzstrukturen und Zuschlagstoffen gestaltet. Die dunklen Holzbalken binden die Wohnung über alle Räume hinweg, zu einem neuen Ganzen zusammen.

    Oberflächen Maitre de Peintre, Obersteckholz

  • Ersatzbau Häsigasse, Beinwil am See STUDIENAUFTRAG 2. RANG / 2018-2019
  • GEMEINDE BEINWIL AM SEE

    Der Ersatzbau ist Teil der historischen Häsigasse im Dorfzentrum von Beinwil am See. Innerhalb des alten Volumens sind eine ebenerdige Gewerbefläche und fünf Mietwohnungen.

    Eingliederung in historische Umgebung

    Der Ausdruck orientiert sich an den vorhandenen Typologien im heutigen Strassenraum. Das Dach hat Trauf- und Firstlinien die parallel zur Strasse verlaufen. Die symmetrische Fassade teilt sich in einen massiven Sockel und eine darüber liegende verputzte Lochfassade. Die grossen Schaufenster bereichern den Strassenraum und laden zum Verweilen ein. Die Fenster im Obergeschoss haben ortsübliche Proportionen. Diese sind mit Betongewänden umrahmt und mit Rollläden beschattet. Gartenseitig wird die Grünfläche grosszügig beibehalten. Eine Terrassierung lässt viel Licht von der Südseite ins Erdgeschoss. Dies erzeugt eine räumliche Verbindung zwischen Strasse und Garten. Über diesem Gartenhof stösst in den oberen Stockwerken ein raumerweiternder Risalit ins Grün. Die Dachterrasse und die seitlichen Balkone lassen den Garten auch in den Obergeschossen erleben. Das Haus soll in solidem Handwerk und mit beständigen Oberflächen gebaut werden. Der Verputz erhält einen Anstrich in grauem Petrol-Mint, der die bereits vorhandene Farbenvielfalt im Strassenraum ergänzt.

    Zusammenarbeit Archimetra, Beinwil am See

  • AWEL Werkhof, Birmensdorf PROJEKTWETTBEWERB 2017
  • KANTON ZÜRICH, BAUDIREKTION, HOCHBAUAMT

    Der Werkhof im Industriegebiet ist dreiseitig von Wald umgeben. Das Gebäude und die Aussenflächen werden auf natürliche Weise in den Hang eingebettet. Das durchlässige Kleid aus Holz spielt mit Einblicken, Ausblicken und dem Durchblick.

    Durchlässiges Holzkleid als „offener Schopf“

    Das Volumen teilt sich in einen Hallenteil und einen leicht erhöhten Kopfbau mit Nebenräumen. Der Zugang erfolgt über den mittig gelegenen Treppenraum. Zenitales Licht erhellt den vertikalen Raum bis ins Erdgeschoss und führt den Blick in Richtung der grossen Halle – dem Herzstück des Gebäudes. Über die gegenläufige Treppe werden die oberen Diensträume erschlossen. Während im Zwischengeschoss die Sanitärräume für die Werkarbeiter angeordnet sind, liegen im Dachgeschoss die Büros der Administration. Die Einstellhalle im Durchfahrprinzip wird über das lange Lichtband belichtet, das die „symmetrische Mitte“ des Baus besetzt. Es entsteht ein einfacher durch Licht und Struktur geprägter Raum. In Anlehnung an einen „offenen Schopf“ wird der Holzbau durch eine Fassade mit vertikalen Kanthölzern strukturiert.

    Zusammenarbeit Schärli Oettli Bauingenieure, Zürich;
    Planea HLKS-Ingenieure, Wohlen

  • Wohnhaus Nellenacker, Hägendorf VOR- UND BAUPROJEKT 2010
  • ASLINVEST AG, AARAU

    Das Mehrfamilienhaus befindet sich an Hanglage in einer parkähnlichen Umgebung mit schönem Baumbestand.

    Wohnflügel mit Raumabfolge Essen-Wohnen-Loggia

    Im Zusammenspiel von Topografie und Bauvorschriften wurde ein Split-Level-Konzept erarbeitet, das jeweils drei Wohnungen versetzt anordnet. Im zentralen Treppenhaus werden die Wohnungen durch eine kontinuierliche Kaskadentreppe erschlossen. Während alle bedienten Räume gut belichtet an der Fassade angeordnet sind, wurden die dienenden Räume im Innern der Wohnung zusammengefasst. Alle Wohnungen sind voneinander weg gerichtet, jeweils dreiseitig orientiert und haben private, von den anderen Wohnungen nicht einsehbare Aussenräume. Das zusammenhängende Raumgefüge von Ess-Wohn-Loggia-Zimmer bietet Grosszügigkeit. Einerseits mit Durchblicken innerhalb der Wohnung und andererseits mit Sicht in die Umgebung. Durch Fassadenknicke entstehen im Raum Verengungen die zonieren und private Bereiche zum Rückziehen erlauben.

    Zusammenabreit c2m Architekten, Olten; Realisierung ASLInvest AG, Aarau

  • Ausbildungszentrum, Altstätten PROJEKTWETTBEWERB 2005
  • HOCHBAUAMT ST. GALLEN

    Auf dem grossräumigen Schulareal soll ein Ersatzneubau für das Berufs- und Weiterbildungszentrum geschaffen werden. Das bestehende Gebäude wird bis auf den Kommandoposten im Untergeschoss rückgebaut und durch den Neubau aufgestockt.

    Licht und Raum als Kontinuum

    Der darüber liegende Neubau gliedert sich in drei unabhängig zu betreibende Gebäudeteile: Foyer mit Aula, Administration und Schulungsräume. Die spannungsvollen Erschliessungen leben durch die unterschiedliche Geschossigkeiten und deren Richtungswechsel. Innerhalb des kompakten Baukörpers bringen drei Lichthöfe Helligkeit in die Erschliessung. Jeder Raum ist natürlich belüftet und die Klassenräume erhalten von zwei Seiten Licht. Die Fassade besteht aus vorfabrizierten und wiederholenden Betonelementen. Die feingliedrige und netzartige Struktur verleiht dem Neubau eine eigenständige Identität und ist Sinnbild der Kommunikations- und Informatikgesellschaft.

    Zusammenarbeit Christoph Middelberg, Zürich

  • Erweiterung Bezirksgericht, Meilen PROJEKTWETTBEWERB 2015
  • KANTON ZÜRICH, BAUDIREKTION, HOCHBAUAMT

    Die Erweiterung für das Gerichtsgebäude liegt in einem heterogenen Wohnquartier. Die Einstellhalle dient als Sockel und definiert mit der Gerichtslinde den grosszügigen Vorplatz vor dem Eingang. Der rückwärtige Obsthain schafft die nötige Distanz zu den angrenzenden Wohnhäusern.

    Aussenwirkung und introvertierte Gerichtssäle

    Während im Erdgeschoss die Räume für den sicheren Gebäudezutritt platziert sind, liegen in den beiden Obergeschossen vier unterschiedliche Gerichtssäle mit Sitzungs- und Nebenräumen. Die Vorzone mit der grossen Wendeltreppe erlaubt den Blick bis zur Hügelkette des Zimmerbergs. Die Grundrissstruktur teilt sich in eine öffentliche und eine gesicherte Zone. Sie ist Abbild der komplexen funktionalen Anforderungen. Im Innern soll durch eine warme Materialisierung eine ruhige und angenehme Atmosphäre geschaffen werden, die sich auf die Nutzer überträgt und das Vertrauen in die Rechtsprechung fördert. Für die Wandverkleidungen und die Vorhänge werden handgewebte Stoffe erstellt. Die grossflächigen Textilien wirken als einzelne Zeichnungen und binden die Gerichtssäle als Ganzes zusammen. Die Muster zeigen sich je nach Standpunkt unterschiedlich. Von nah scheinen sie chaotisch aber konkret, von fern offenbaren sie ihre Ordnung und ihre Bilder: abstrakte Landschaften aus sich kreuzenden interferierender Linien.

    Schärli Oettli Bauingenieure, Zürich; RMB Engineering, Lenzburg; Textilien Malevez / Schumann, Luzern

  • Haus mit Hochparterre, Fahrwangen VORPROJEKT 2009
  • AUFTRAGGEBER PRIVAT

    Das Wohnhaus ist Teil eines vielfältig Quartiers mit Einfamilienhäusern. Das Konzept verfolgt das Ziel „Wohnen und Arbeiten an einem Ort“ einfach und zweckmässig zu vereinen.

    Raum und Zwischenraum

    Der Wunsch nach Privatsphäre und Intimität waren zentrale Anliegen der Bauherrschaft. Während sämtliche Wohn- und Schlafräume im leicht erhöhten Hochparterre liegen, sind die Büroräume unter Terrain angeordnet und über einen grosszügigen und bewachsenen Hof belichtet. Die ausdrucksvollen Lorbeer- und Buchenhecken der Nachbarparzellen begrenzen das Grundstück und sind die Basis der Projektidee. Die geschlossenen Raumzellen bieten die Möglichkeit des Rückzugs und der Ruhe. Gleichzeitig definieren sie den zentralen Wohn- und Essraum dazwischen als Mittelpunkt des täglichen Familienlebens. Das Wohnen mit den Holzterrassen im Hochparterre steht in direktem Bezug zum grosszügigen allseitigen präsenten Garten. Die zweischalige Klinkerkonstruktion ist im Innenraum glatt verputzt und wird mit Travertin und dunkeln Holzeinbauten kombiniert.

    Zusammenarbeit Andreas Filosi, Schönenwerd

  • Hotel „Taste Village“, Hägendorf MACHBARKEITSSTUDIE 2009
  • AUFTRAGGEBER PRIVAT

    Im Rahmen der Machbarkeitsstudie wurde untersucht, wie ein Restaurant innerhalb eines historischen Bestands mit einem kleinen Businesshotel ergänzt werden kann.

    Hotelzimmer mit Landschaftsbezug

    Dabei sollte das Konzept neben einer Hotelnutzung, eine spätere Umnutzung in Geschosswohnungen erlauben. Die Nutzung von Synergien mit einem wirtschaftlichen Betrieb stand dabei im Vordergrund. Die zur Hauptstrasse zurückversetzte Hanglage ist geprägt von einem prächtigen Baumbestand und gestattet ruhiges und privates Residieren im Grünen. Der Hauptzugang erfolgt über das erhöhte Plateau, das als Sitzplatz dient und das Bindeglied zum bestehenden Restaurant darstellt. Neben der Lobby verfügt das Gästehaus über neun Zimmer. Die Seitenwände der Loggien dienen als Sichtschutz und fokussieren den Blick in den parkähnlichen Aussenraum. Die Idee des Konzepts liegt in der spezifischen Anordnung und Ausrichtung der Hotelzimmer. Jeder Raum erhält seine Eigenständigkeit die zusätzlich mit Material und Farbe akzentuiert werden kann.

    Zusammenarbeit c2m Architekten, Olten